価格1,600万円
物件詳細
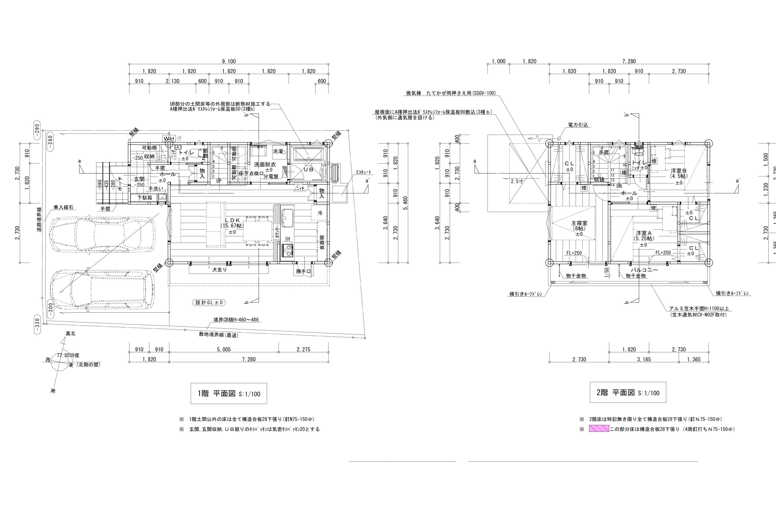
| 所在地 | 高知市朝倉本町695番2 南 |
|---|---|
| 敷地面積 | 131.65㎡(39.82坪) |
| 都市計画法 | 市街化区域 |
| 用途地域 | 一種中高層 |
| 接道 | 一方道路 西 |
| 建ぺい率 | 60% |
| 容積率 | 200% |
| 地目 | 宅地 |
| 交通 | とさでん交通北城山バス停 徒歩5分 400m |
| 取引態様 | 売主 |
| 現況 | 更地 |
| 引渡し日 | 相談 |
| 備考 | セットバック必要 上記敷地面積はセットバック後の面積 |
その他
別途 上水道引込工事代金375,500円(税込)
マップ








